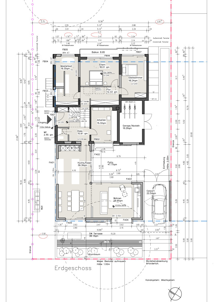
Ein kleiner Planungseinblick unseres Projektes in der Nähe von Köln. Der Bestandsgebäude wurde kernsaniert und hat einen minimalstischen Anbau mit Sichtbeton erhalten. Geplant unter Berücksichtigung aller Bauherrnwünsche, energetischen Aspekten und den baurechtlichen Vorgaben
